แบบก่อสร้าอย่างงละเอียด โดย easy warehouse LOD 400 แสดง Connection Details รอยต่อโครงสร้างเหล็ก

บทนำ แบบก่อสร้างอย่างละเอียด

สำหรับแบบก่อสร้างอย่างละเอียด โดัง โรงงาน สำนักงาน หรืออาคารและงานก่อสร้างต่างๆ นั้นถือเป็นสิ่งที่มีความสำคัญมาก เป็นอันดับแรกเลยก็ว่าได้ มันคือคู่มือการทำงาน เป็นคู่มือตรงกลางในการสื่อสารของทุกๆฝ่าย ไม่ว่าจะเป็นคนออกแบบ เจ้าของ ลูกค้า ช่าง คนตรวจงาน ใครๆก็จะมาดูแบบก่อนอันดับแรก เพื่อให้รู้ว่าแบบเป็นอย่างไร จะก่อสร้างและทำงานไปในทิศทางไหน สร้างเสร็จแล้วหน้าตาจะเป็นอย่างไร ทุกอย่างจะอยู่ที่แบบทั้งนั้น

แบบเขียนแบบจึงมีความสำคัญอย่างมาก สำหรับบริษัทที่มีความเชี่ยวชาญและชำชาญการสูงแล้ว จะมีตำแหน่งเขียนแบบโดยเฉพาะ และไม่ได้ให้สถาปนิกเขียนแบบ ตำแหน่งดังกล่าวเราจะเรียกว่า draftman ทำหน้างานเขียนแบบ สำงานก่อสร้างโดยเฉพาะ 

และถ้าหากแบบมีความละเอียดมากเท่าไหร่ งานก่อสร้างก็จะเกิดปัญหาน้อยลงเท่านั้น นั่นจึงเป็นเหตุผลที่ค่าออกแบบเขียนแบบถึงมาราคาที่ค่อนข้างสูง และยิ่งจ้างทีมงานที่มีคุณภาพ ราคาค่าออกแบบก็จะยิ่งสูงตาม แต่เมื่อเทียบกับความผิดพลาดของหน้างานแล้ว ถือว่าคุ้มค่ามาก ปัจจุบันลูกค้าส่วนมากเริ่มเห็นความสำคัญของงานออกแบบเขียนแบบ เพราะเป็นความถนัดทางวิชาชีพ เราจึงเห็นความสวยงามและความเป็นไปได้ต่างๆของงานที่ออกแบบหลากหลาย ไม่เหมือนในอดีต ที่มีแค่อาคารรูปแบบเดิมๆ และจำเจ

แบบก่อสร้างละเอียด โดย easy warehouse LOD 400 แสดง Connection Details รอยต่อโครงสร้างเหล็กแบบก่อสร้างละเอียด โดย easy warehouse LOD 400 แสดง Connection Details รอยต่อโครงสร้างเหล็ก

ตัวอย่างงานเขียนแบบที่ใช้งานจริง

easy warehouse เราให้ความสำคัญกับการเขียนแบบเป็นอย่างมาก แบบก่อสร้างอย่างบละเอียด ด้วยประสบการณ์และความรักในสายอาชีพของเรา เราจึงให้ความสำคัญการงานประเภทพื้นฐานเป็นอันดับแรก ในที่นี้แอดมินจะยกตัวอย่างงานให้ดู 

โดยงานเขียนแบบดังกล่าว ออกแบบและเขียนแบบโดย in house ของทางเรา easy warehouse ซึ่งเป็นผู้ออกแบบตั้งแต่งานสถาปัตยกรรมหลัก จนถึงงานโครงสร้าง เมื่อพัฒนาในรูปแบบ in-house เราจึงสามารถทำให้งานมีความต่อเนื่องได้  ไม่เหมือนบริษัทออกแบบที่มีเฉพาะสถาปนิกเท่านั้น  แต่ของเรามีบุคลากรครบ ตั้งแต่สถาปนิก วิศวกรโครงสร้าง วิศวกรเครื่องกล วิศวกรงานระบบ แต่ละท่านจะรับผิดชอบเฉพาะงานของตัวเองอย่างชัดเจน และส่งต่องานกันภายในอย่างรวดเร็ว ไร้รอยต่อ ทำให้งานเขียนถูกต้อง ตรงตามงานออกแบบแรก ความผิดพลาดน้อย และไม่เสียเวลามนการทำแบบมาก

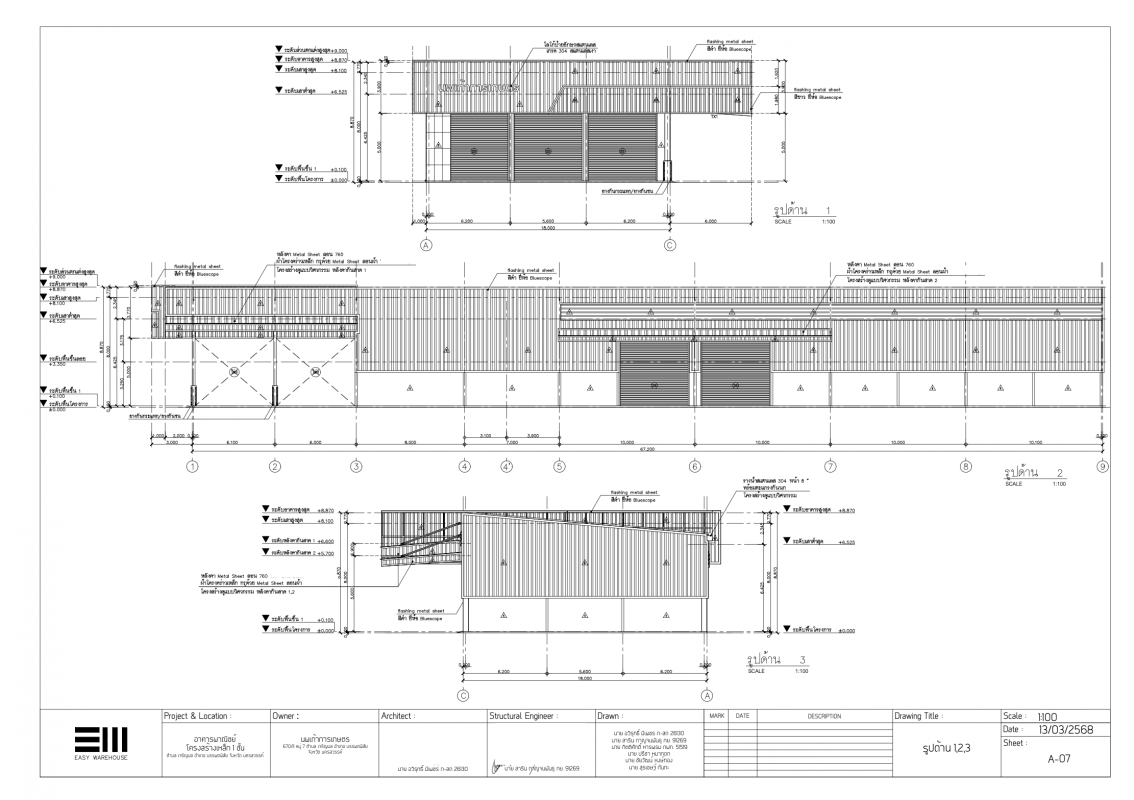
ตัวอย่าง คืองาน ก่อสร้างที่กำลังอยู่ในขั้นตอนการก่อสร้าง ที่จังหวัด นครสวรรค์ ประเทศไทย งานอาคารเหล็ก 2 ชั้น ร้านขายปุ๋ยและอุปกรณ์การเกษตรมืออาชีพ “นพเก้าการเกษตร”  อาคารเป็นรูปแบบโครงสร้างเหล็ก ใช้งานเป็นออฟฟิศ สำนักงาน คลังสินค้า และพื้นที่จัดแสดงสินค้าอย่างลงตัว โดยในภาพจะแสดงให้เห็นถึงความละเอียดของแบบ ที่บอกทุกจุด ตั้งแต่รูปร่าง ขนาด กว้าง ยาว สูง ภาพตัด และรายละเอียดการติดตั้ง   เมื่อแบบมีความละเอียด จึงสื่อสารอย่างตรงไปตรงมาให้กับแผนกก่อสร้างได้เป็นอย่างดี  ซึ่งจะช่วยให้ลดระยะเวลาในการก่อสร้างโครงสร้างนี้ไปได้อย่างมาก ลด

แบบก่อสร้าอย่างงละเอียด โดย easy warehouse LOD 400 แสดง Connection Details รอยต่อโครงสร้างเหล็ก
แบบก่อสร้าอย่างงละเอียด โดย easy warehouse LOD 400 แสดง Connection Details รอยต่อโครงสร้างเหล็ก
แบบก่อสร้าอย่างงละเอียด โดย easy warehouse LOD 400 แสดง Connection Details รอยต่อโครงสร้างเหล็ก
แบบก่อสร้าอย่างงละเอียด โดย easy warehouse LOD 400 แสดง Connection Details รอยต่อโครงสร้างเหล็ก
แบบก่อสร้าอย่างงละเอียด โดย easy warehouse LOD 400 แสดง Connection Details รอยต่อโครงสร้างเหล็ก
แบบก่อสร้างละเอียด โดย easy warehouse LOD 400 แสดง Connection Details รอยต่อโครงสร้างเหล็ก
แบบก่อสร้างละเอียด โดย easy warehouse LOD 400 แสดง Connection Details รอยต่อโครงสร้างเหล็ก

ทีม IN-HOUSE

easy warehouse เราทีมงาน in house ครบทุกแผนกที่เกี่ยวข้องทั้งหมด เราพัฒนาแบบ คำนวณโครงสร้าง และเขียนแบบเองทั้งหมด ไม่ได้จ้างซัพคอนเท็คหรือOutsource เราจึงสามารถควบคุมได้ในส่วนของ ปริมาณ และเวลาให้กับลูกค้า งานที่ออกมาจึงมีคุณภาพ และความเหมาะสม มอบความพึงพอใจให้กับลูกค้าได้เป็นอย่างดี  งานเขียนแบบของเราจึงสามารถทำได้อย่างละเอียด ครบถ้วน และถูกต้อง ค่า

แบบก่อสร้าอย่างงละเอียด โดย easy warehouse LOD 400 แสดง Connection Details รอยต่อโครงสร้างเหล็ก
easy warehouse organization chart

ตารางเปรียบเทียบ: การจ้างผู้ออกแบบมืออาชีพ VS. มือสมัครเล่น/ผู้รับเหมา

ตารางเปรียบเทียบเพื่อให้เห็นภาพ ระหว่างการทำแบบโดยบริษัทมืออาชีพ กับ มือสมัครเล่นทั่วไป โดยมืออาชีพจะมีข้อดีมากกว่าอย่างชัดเจน ส่วนข้อเสียก็จะเป็นเรื่องราคาค่าออกแบบ แต่เมื่อเทียบทั้งโครงการแล้ว การเริ่มต้นทำแบบที่ถูกต้องโดยมืออาชีพย่อมดีกว่าเสมอ เพราะราคาคือค่าวิชาชีพและค่าประสบการณ์การทำงานที่ผ่านมา สิ่งเหล่านี้หาไม่ได้จากมือสมัคร ที่เพิ่งรับงาน หรือถึงแม้จะทำงานมานานแล้ว แต่หากไม่เคยทำงานในรูปแบบภาพรวมจน finish ก็ไม่สามารถทำออกมาได้ดี  เช่นจ้างแยกเฉพาะวิศวกร หรือ สถาปนิก เพราะขาด head หัวหน้างานการสั่งการ และการแนะนำที่ถูกวิธี  แล้วสุดท้ายจะเป็นแค่การเดินตามหลัง ฟังคำสั่ง ลูกค้าอย่างเดียว ไม่สามารถแนะนำและพาลูกค้า เข้าสู่การจบงานได้ อย่างสมบูรณ์ โปรเจ็คจึงเกิดความล่าช้าขึ้นเรื่อยๆ จนเหมือนไม่มีจุดสิ้นสุด

มิติการเปรียบเทียบ ผู้ออกแบบมืออาชีพ/บริษัทออกแบบ (Professional) มือสมัครเล่นทั่วไป
(Amateur/Contractor-Designer)
1. ความละเอียดของแบบ ละเอียดมาก ให้ความสำคัญต่อการก่อสร้างจริง ไม่ละเอียด ขาด detail จากประสบการณ์จริง
2. ความแม่นยำของ  สูงมาก ทำให้ควบคุมงบประมาณได้ดีเยี่ยม ต่ำ มักขาดรายละเอียด 
3. การบริหารความเสี่ยง ต่ำ นื่องจากปัญหาถูกแก้ไขบนแบบก่อนเริ่มงานจริง ป้องกัน Change Orders สูง มักเกิดปัญหาหน้างาน (Clash) และนำไปสู่การหยุดงาน
4. ระยะเวลาโครงการ รวดเร็วและแน่นอน เพราะหน้างานเดินต่อเนื่อง ไม่ต้องหยุดรอการแก้แบบ ล่าช้า มักเกิดความล่าช้าจากการหยุดงานเพื่อหาทางแก้ปัญหาที่ไม่ได้ออกแบบไว้
5. การรองรับกฎหมายและมาตรฐาน สมบูรณ์ เอกสารครบถ้วน รองรับทุกหน่วยงานราชการ และมาตรฐานความปลอดภัย เสี่ยงสูง แบบอาจไม่สอดคล้องกับข้อกำหนดทางกฎหมาย ทำให้เกิดปัญหาในการขออนุญาต
6. ค่าใช้จ่าย สูงกว่า เนื่องจากใช้บุคคลากรมากกว่า  ต่ำ เนื่องจากใช้บุคากรน้อย เน้นทำงานคนเดียวหรือทีมเล็ก
7. มาตราฐานความละเอียด LOD  สูงมาก LOD400 เทียบเท่าสามารถก่อสร้างได้จริงทันที ต่ำ เพียง LOD200 เทียบเท่าแค่การบอกขนาดคร่าวๆ
7. ผลกระทบต่อ Cost รวม ต่ำกว่า เพราะผลกระทบน้อย สูงกว่ามาก เมื่อรวมความเสียหายจากความล่าช้าและต้นทุนการแก้ไขปัญหาหน้างาน
ค่าออกแบบโกดัง, ค่าออกแบบโรงงาน

ราคาค่าออกแบบ ทำเขียนแบบ

ราคาค่าออกแบบทางเราจะแสดงให้เห็นชัดเจน ไม่เหมือนที่อื่นที่ให้ลูกค้าติดต่อเข้ามาก่อนแล้วหาโอกาสเรียกค่าใช้จ่ายสูง หรือเลือกรับงาน ทางเราจะเน้นความเป็นจริงที่ตรวจสอบได้ ให้ลูกค้าเห็นตัวเลขและค่าบริการ อย่างเปิดแผย โดยราคาค่าเขียนแบบ ออกแบบของเราจะเริ่มต้นที่
200 บาท/ตรม. สำหรับงานโกดังสินค้าธรรมดา
500 บาท/ตรม. สำหรับงานโรงงานประเภท GMP
750 บาท/ตรม. สำหรับงานสำนักงานและออฟฟิศ
โดยในทุกขอบเขตราคาที่ให้บริการจะมีสิ่งที่ได้รับเหมือนกันคือ  งานออกแบบและเขียนแบบทางสถาปัตยกรรม งานออกแบบและเขียนแบบทางวิศวกรรม งานออกแบบและเขียนแบบไฟฟ้าแสงสว่างและกำลัง โมเดล3D เสมือนจริง แบบสำหรับขออนุญาติก่อสร้าง 3-5 ชุด(แล้วแต่กำหนดจำนวนชุดของแต่ละเขต) ลายเซ็นวิศวกรและสถาปนิกออกแบบ และเอกสารสำหรับยื่นขออนุญาตก่อสร้าง น.1 

ซึ่งโดยรวมแล้ว ราคาจะถูกกว่าการคิดเป็นเปอร์เซ็นต์ค่าก่อสร้างตามท้องตลาด ถึง 30-50% เพราะเราใช้ทีม in house ของเรา ไม่ใช่การลดต้นทุนหรือการตัดงานออกเหมือนกันที่อื่น สามารถติดต่อสอบถามและขอข้อมูลเพิ่มเติมได้ที่ทุกช่องทางการติดของเรา easy warehouse หรือ line id: 0888889944 คุณเม
พิ่มเติม

ใส่ความเห็น

อีเมลของคุณจะไม่แสดงให้คนอื่นเห็น ช่องข้อมูลจำเป็นถูกทำเครื่องหมาย *